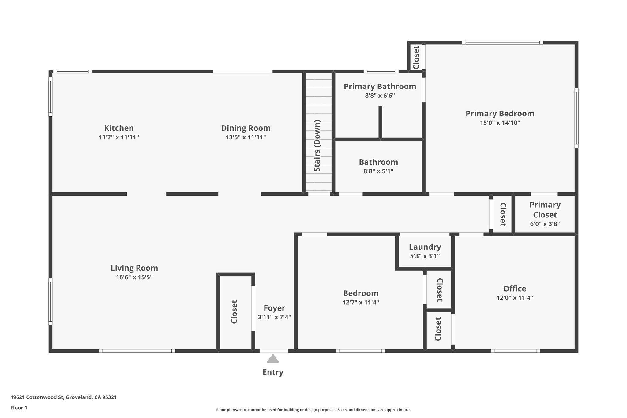
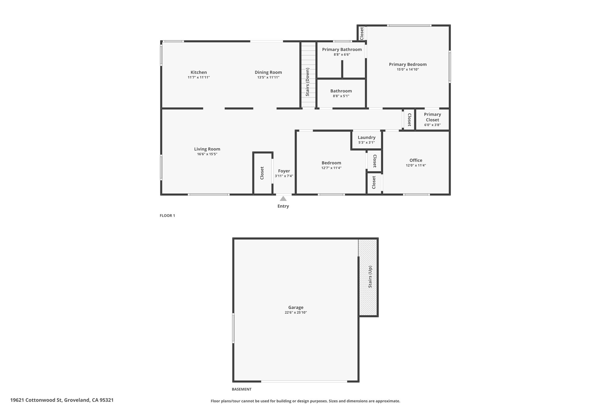
19621 Cottonwood St, Groveland, CA 95321
Toggle Navigation
Images
Floor Plans
3D Tour
Map
19621 Cottonwood St
Groveland, CA 95321
Scroll to Content
Images
Slideshow
Photo Grid
Hide
Previous
Next
Show more
Floor Plans
Slideshow
Photo Grid
Hide
Previous
Next
3D Tour