20237 Upper Skyridge Dr, Groveland, CA 95321
Toggle Navigation
Images
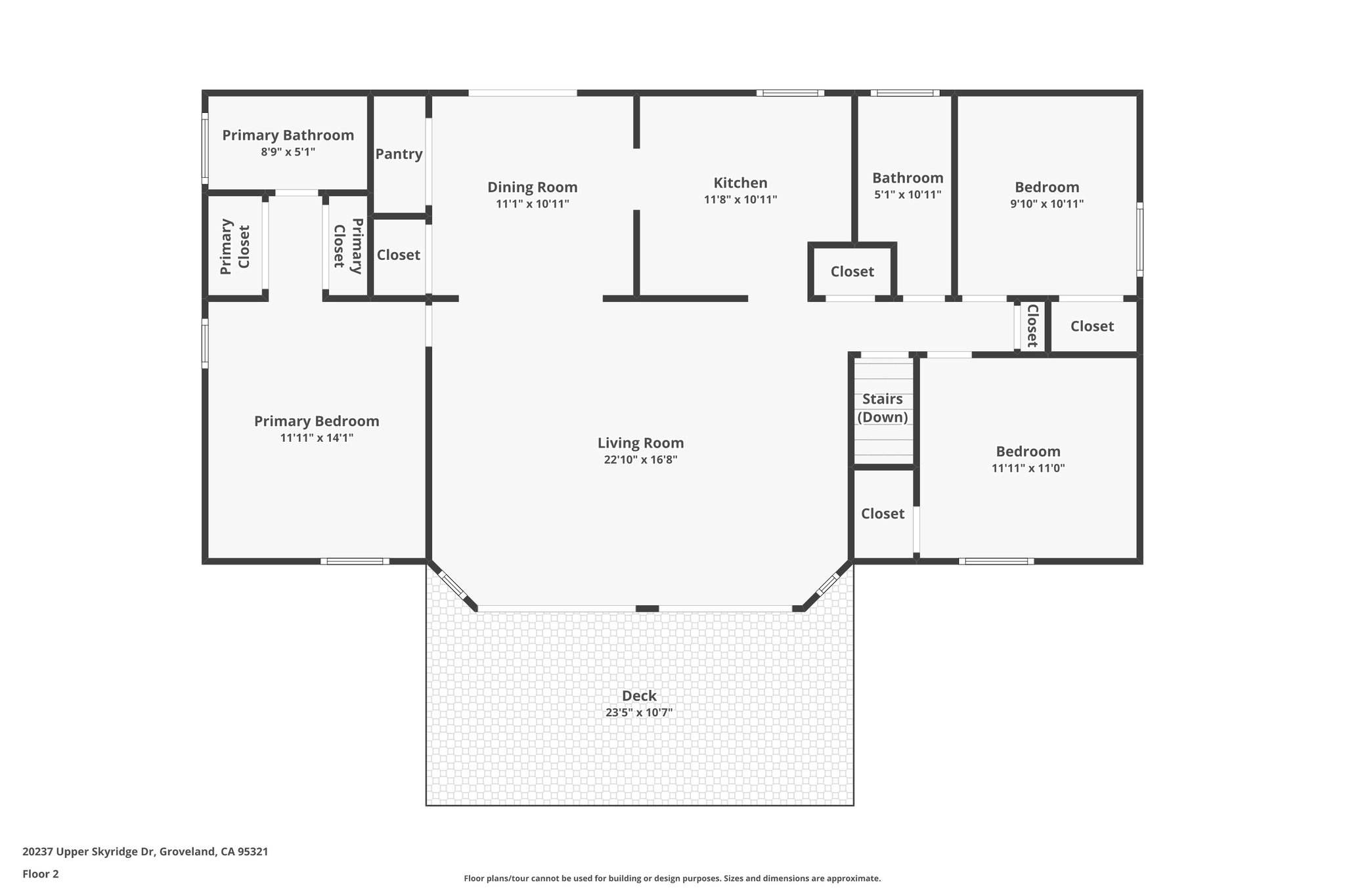
Floor Plans
3D Tour
Map
20237 Upper Skyridge Dr
Groveland, CA 95321
Scroll to Content
Images
Slideshow
Photo Grid
Hide
Previous
Next
Show more
Floor Plans
Slideshow
Photo Grid
Hide
Previous
Next
3D Tour